Modern Comfort Meets Southern Charm | Bellhaven
Features
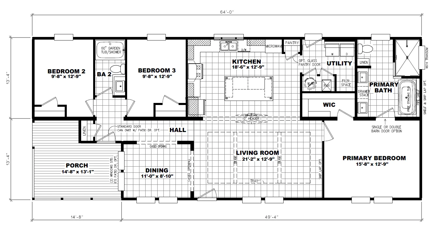
Floor Plan
- IN STOCK
- UPGRADES INCLUDED
Modern Comfort Meets Southern Charm | Bellhaven
3 beds
2 baths
1,525 sq. ft.
Features
Off-Frame Modular
Split Bedrooms
Luxury Primary Bathroom
Floor Plan

We accept trades!
Find a new home you love? Contact us for more information about our trade-in requirements and to schedule your free trade evaluation.
Learn More




























